ID 154945
kinnisvaraekspert.ee/objektid/154945
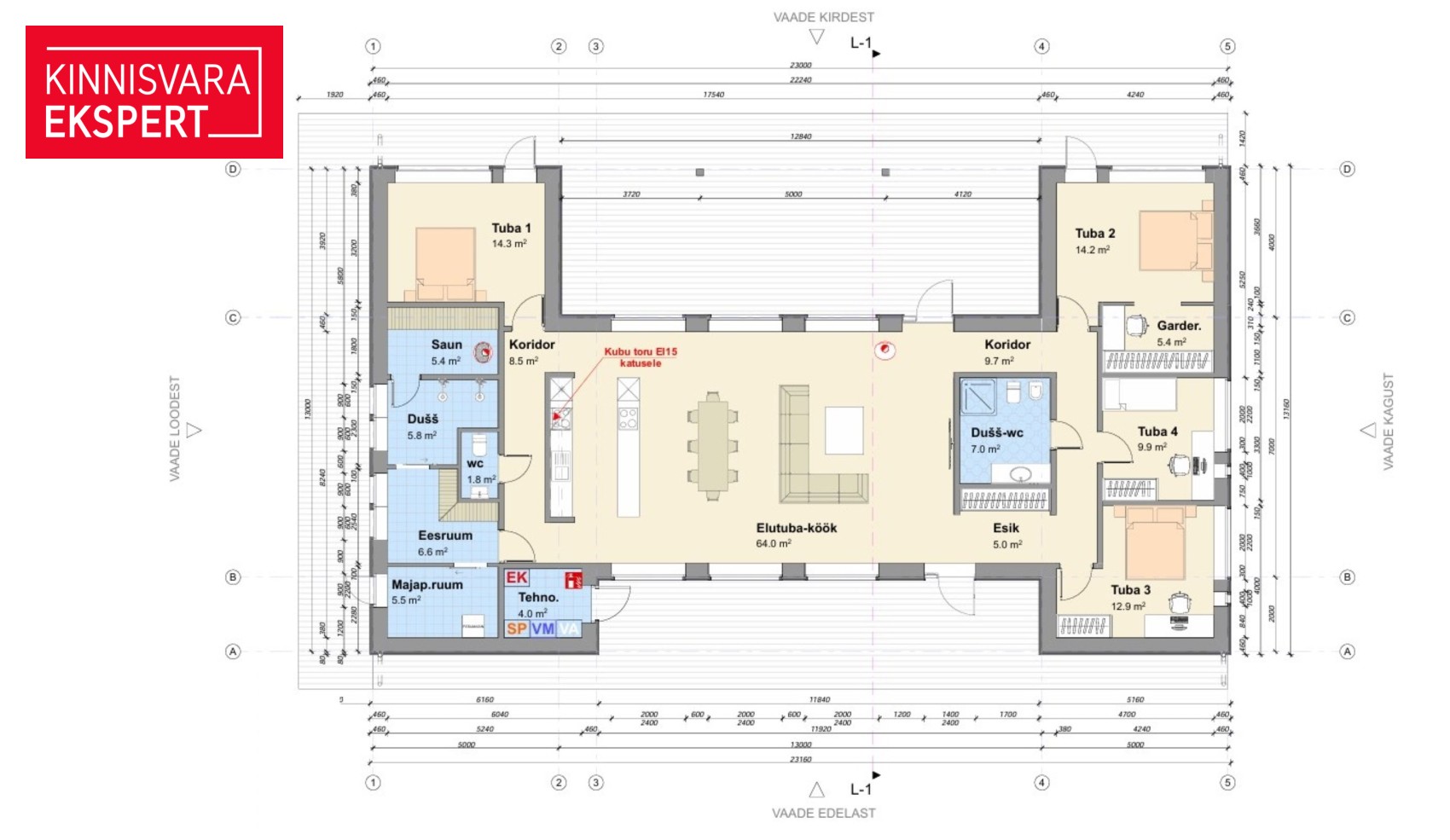
Tube 5
Üldpind 180 m2
Krunt 5034 m2
Omandivorm kinnistu
Valmidus uus hoone
Ehitusaasta 2026
Korruseid 1
Hoone materjal kivi
Katastritunnus: 31701:001:0313
Hind 432 000 €
Ruutmeetri hind 2 400.00 €

Asukoht

Rapla maakond, Kohila vald, Vilivere küla

Lisaandmed

õhksoojuspump, boiler, tööstusvool, parkett, profiil, saun, dušš, avatud köök, tsentraalne vesi, vesipõrandaküte

Lisainfo

Kui otsid kaasaegset, energiatõhusat ja rahulikus keskkonnas asuvat kodu, siis see pakkumine Vilivere külas on just Sulle.

Müüa uus A-energiaklassi kivimaja Kohila vallas, mis valmib „võtmed kätte“ lahendusena. Tegemist on kvaliteetse ja läbimõeldud projektiga, kus on ühendatud kaasaegne arhitektuur ning praktiline ruumilahendus.

Maja köetav pind on 180 m² ning planeeringult on majas 4 magamistuba ning avar, ligikaudu 64 m² suurune elutuba koos avatud köögiga, saun, pesuruumid, 2 WC-d.

Ehituses kasutatakse kvaliteetseid ja vastupidavaid materjale – hoone kandeseinad on laotud Bauroc kiviplokkidest paksusega 375 mm, mis tagavad hea soojapidavuse ja vastupidavuse. Siseseinad on kiviplokkidest paksusega 150 mm. Hoone rajatakse tugevatele Reideni L-plokk plaatvundamendile. Vahelaed ja katus on lahendatud puitferm konstruktsiooniga. Energiasäästlik õhk-vesisoojuspump tagab madalad kõrvalkulud. Elektriliitumine on 3x16A.

Kinnistu suurus on 5034 m², pakkudes rohkelt privaatsust ning võimalusi kujundada just Sinu perele sobiv hooviala. Parkimisala rajatakse graniitkillustikuga.

Asukoht ühendab endas rahu ja hea ligipääsu – Kohila vaid 3,5 km, Aespa alevik 4 km, Kiisa 6 km ning Tallinn umbes 30 km kaugusel. Vilivere rongipeatus asub 2 km kaugusel, mis tagab mugava ühenduse Tallinnaga.

Lisaväärtust loob lähiaastatel rajatav Kohila–Kiisa kergliiklustee. Rajatava kergliiklustee eesmärk on siduda Kohila alevi kergliiklusteede võrgustik Aespa ja Kiisa alevike jalg- ja kergliiklusteede võrgustikuga, luues seeläbi katkematu ning turvalise kergliiklusühenduse Tallinna linna ja Kohila alevi vahel..

See on suurepärane võimalus soetada uus ja energiasäästlik kodu looduslähedases keskkonnas, samas linnale mugavalt lähedal.


****
KINNISVARAEKSPERT tegutseb Eesti turul alates 1993. aastast. Meie Bürood asuvad Tallinnas ja Pärnus ning teenindame teid üle Eesti. Koostööpartnerite Nord Prime Capital ja Alliance Group UAB kaudu oleme esindatud ka Lätis ning Leedus.

Pakume maaklerteenust, hindamist ja kinnisvaraalast nõustamisteenust nii era- kui ka ärisektoris.

Kinnisvaraekspert teeb tihedat koostööd maailma suurimate kinnisvarafirmade hulka kuuluva ettevõttega Cushman & Wakefield. Meie koostöösidemed ulatuvad peale Balti riikide ja Põhjamaade pea kõikidesse maailmajagudesse.

Rohkem infot leiad https://www.kinnisvaraekspert.ee
***

Ardo Lepp
elamispindade osakonna juhataja, juhatuse liige
kinnisvara vanemmaakler tase 6,
Eesti Kinnisvaramaaklerite Koja juhatuse liige,
Kinnisvaramaakleri reg.nr: KMR 44470
Tallinn